熊本市の新築一戸建て|株式会社みらいコンシェルジュ > (戸建(売買))地域から探す > 宇土市 > 宇土市境目町4号地
☆トライアル宇土店そば!☆花園小学校・鶴城中学校エリア☆小学校・買い物施設も近く、利便性の良い立地♪閑静な住宅地です!☆各居室収納・パントリー・WIC付き!☆車2台駐車可能!☆照明器具付き!☆











(※元利均等方式 金利5.00%まで ※返済年数5~50年まで入力できます)
(※ボーナスは年2回で計算しています。1000万円まで入力できます)
| 所在地 | 熊本県宇土市境目町902-6 | ||
|---|---|---|---|
| 交通 | |||
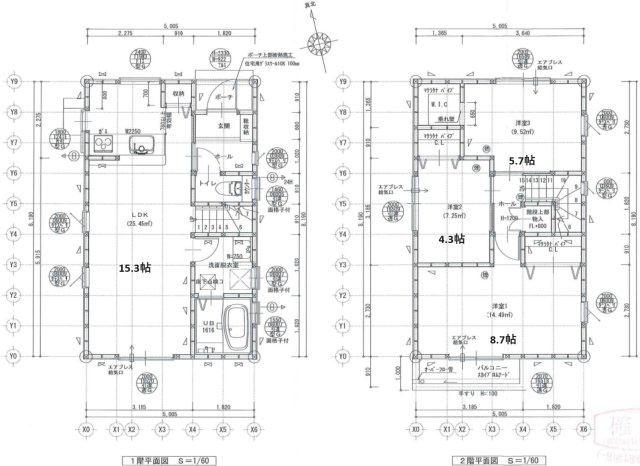
| 間取り/詳細 |
3LDK/ LDK 15.3帖 1室/洋室 8.7帖 1室/洋室 5.7帖 1室/洋室 4.3帖 1室 |
建物面積(坪数) | 84.87㎡(25.67坪 |
| 価格 | 1,780万円 | ||
| 駐車場/月額料金 | 有(2台)/0円 | ||
| 土地の敷金/保証金 | -/- | 借地料/借地期間 | -/- |
| 土地権利 | 所有権 | 土地面積(坪数) | 125.73㎡(38.03坪) |
| 傾斜地部分面積 | - | 路地状敷地 | - |
| 私道負担面積/セットバック | -/無 | ||
| 地目/地勢 | 宅地/平坦 | 接道状況 | 一方(北 公道 4.0m) |
| 建ぺい率/容積率 | 60%/200% | 用途地域 | 第一種中高層住居専用 |
| 都市計画 | 非線引区域 | 種別/構造 | 中古一戸建/木造 |
| 階建 | 2階建 | 築年月(築年数) | 2023年 3月 (築2年) |
| 総区画数/販売区画数 | -/- | 向き | 南 |
| 現況 | 空家 | その他の法令上の制限 | - |
| 取引態様/引渡時期 | 一般媒介/即時 | 建築確認番号 | 第202219900号 |
| 物件番号 | 87151312 | ||
| 設備条件 |
|
||
| 備考 | |||
| 取扱会社 |
|
||
| QRコード |
このQRコードを読み取ることで、スマホでも物件情報を確認できます。 |
||
※地図上に表示される物件の位置は付近住所に所在することを表すものであり、実際の物件所在地とは異なる場合がございます。
宇土市以外の市区町村から探す