熊本市の新築一戸建て|株式会社CRAS(クラス) > (戸建(売買))地域から探す > 熊本市北区 > 熊本市北区清水新地2期
☆リフォーム済み!即入居可能♪(水回り新品交換・フローリング張替、天井・壁クロス張替・シューズボックス新品交換等々・・)☆城北小学校・清水中学校エリア☆











(※元利均等方式 金利5.00%まで ※返済年数5~50年まで入力できます)
(※ボーナスは年2回で計算しています。1000万円まで入力できます)
| 所在地 | 熊本県熊本市北区清水新地2丁目5-35 | ||
|---|---|---|---|
| 交通 | |||
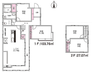
| 間取り/詳細 |
4LDK/ LDK 22.9帖 1室/洋室 8.1帖 1室/洋室 6.0帖 1室/洋室 6.0帖 2室 |
建物面積(坪数) | 130.83㎡(39.57坪 |
| 価格 | 2,298万円 | ||
| 駐車場/月額料金 | 有(2台)/0円 | ||
| 土地の敷金/保証金 | -/- | 借地料/借地期間 | -/- |
| 土地権利 | 所有権 | 土地面積(坪数) | 262.50㎡(79.40坪) |
| 傾斜地部分面積 | - | 路地状敷地 | - |
| 私道負担面積/セットバック | -/無 | ||
| 地目/地勢 | 宅地/- | 接道状況 | 一方(北 公道 8.0m) |
| 建ぺい率/容積率 | 60%/150% | 用途地域 | 第一種中高層住居専用 |
| 都市計画 | 市街化区域 | 種別/構造 | 中古一戸建/木造 |
| 階建 | 2階建 | 築年月(築年数) | 1978年 6月 (築47年) |
| 総区画数/販売区画数 | -/- | 向き | 南 |
| 現況 | 空家 | その他の法令上の制限 | - |
| 取引態様/引渡時期 | 一般媒介/即時 | 建築確認番号 | - |
| 物件番号 | 95562292 | ||
| リフォーム |
2024年12月 キッチン 浴室 トイレ 壁 床 全室 【リフォーム内容】 水回り新品交換・シューズボックス新品交換・建具新品交換・テレビモニターホン新品交換・全居室火災報知器設置・玄関ドア新品交換・防蟻工事(施工後5年保証)・耐震補強工事 2024年12月 外壁 屋根 |
||
| 設備条件 |
|
||
| 備考 |
【リフォーム内容】2024年12月 水回り新品交換・シューズボックス新品交換・建具新品交換・テレビモニターホン新品交換・全居室火災報知器設置・玄関ドア新品交換・防蟻工事(施工後5年保証)・耐震補強工事 |
||
| 取扱会社 |
|
||
| QRコード |
このQRコードを読み取ることで、スマホでも物件情報を確認できます。 |
||
※地図上に表示される物件の位置は付近住所に所在することを表すものであり、実際の物件所在地とは異なる場合がございます。
熊本市北区以外の市区町村から探す
熊本市北区の町名から探す