熊本市の新築一戸建て|株式会社みらいコンシェルジュ > (戸建(売買))地域から探す > 熊本市東区 > トレステージ桜木4丁目 3号棟
☆周辺環境充実・利便性良好☆並列3台駐車可能で来客時も安心☆桜木東小学校・桜木中学校エリア☆【長期優良住宅】【耐震等級3仕様】【断熱性能等級5仕様】こだわりが詰まったお家です☆











(※元利均等方式 金利5.00%まで ※返済年数5~50年まで入力できます)
(※ボーナスは年2回で計算しています。1000万円まで入力できます)
| 所在地 | 熊本県熊本市東区桜木4丁目3 | ||
|---|---|---|---|
| 交通 | |||
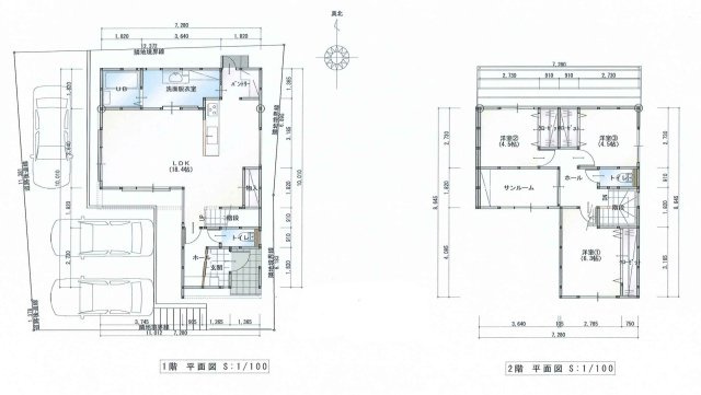
| 間取り/詳細 |
3LDK/ LDK 18.4帖 1室/洋室 6.3帖 1室/洋室 4.5帖 2室 |
建物面積(坪数) | 100.93㎡(30.53坪 |
| 価格 | 2,998万円 | ||
| 駐車場/月額料金 | 有(3台)/0円 | ||
| 土地の敷金/保証金 | -/- | 借地料/借地期間 | -/- |
| 土地権利 | 所有権 | 土地面積(坪数) | 149.07㎡(45.09坪) |
| 傾斜地部分面積 | - | 路地状敷地 | - |
| 私道負担面積/セットバック | -/無 | ||
| 地目/地勢 | 宅地/- | 接道状況 | 一方(西 公道 4.0m) |
| 建ぺい率/容積率 | 60%/160% | 用途地域 | 準住居 |
| 都市計画 | 市街化区域 | 種別/構造 | 中古一戸建/木造 |
| 階建 | 2階建 | 築年月(築年数) | 2023年 8月 (築2年) |
| 総区画数/販売区画数 | -/- | 向き | 西 |
| 現況 | 空家 | その他の法令上の制限 | 景観法/航空法/道路斜線制限、隣地斜線制限、日影規制 |
| 取引態様/引渡時期 | 一般媒介/即時 | 建築確認番号 | 第1230236号 |
| 物件番号 | 83783260 | ||
| 設備条件 |
|
||
| 備考 | |||
| 取扱会社 |
|
||
| QRコード |
このQRコードを読み取ることで、スマホでも物件情報を確認できます。 |
||
※地図上に表示される物件の位置は付近住所に所在することを表すものであり、実際の物件所在地とは異なる場合がございます。
熊本市東区以外の市区町村から探す